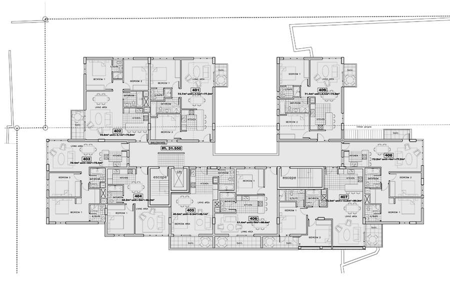
Crimson Square
42 Apartment development in a very constrained land-locked site, Woodstock, Cape Town. The scheme also includes extensive renovation of the existing street facing retail and commercial building.
Location
Cape Town, South Africa
Sector
Mixed Use
Status
Completed 2007









